When the House Decides: Embracing the Unexpected in Our Cedarburg Victorian Renovation

There's a particular kind of humility that comes with renovating an old house. You draw up plans, you dream, you pin inspiration images for months — and then the house tells you what it's actually going to allow. Our Victorian in Cedarburg has been teaching us that lesson in the best possible way.

The Staircase That Wasn't Going Anywhere

When we first laid out our vision for this whole-home renovation, moving the staircase was central to the plan. We had ideas. We had renderings. And then our contractor opened up the walls.

Because of a historical addition on the back of the home, relocating the stairs turned out to be structurally far more complicated than anyone had anticipated. The bones of the house — the way the addition tied into the original structure — made it a non-starter. So we made the decision that every renovator eventually has to make: we listened.

The stairs stayed. But they didn't stay the same. Rebuilt entirely to meet modern code and standard proportions, they now feel like what they always should have been - a staircase that's safe, solid, and quietly beautiful, without losing the character that belongs in a Victorian home.

Honestly? We're glad we were forced to pivot. The flow of the home feels more honest now, more true to the way the house was actually meant to move.

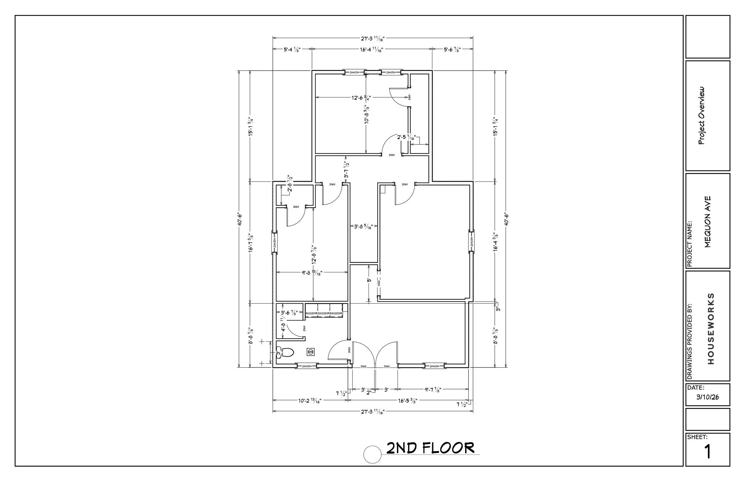
The Primary Suite We Almost Didn't Plan For

With the staircase settled, our attention turned upward, and that's where the project really opened up. The entire upper floor was reimagined around a primary suite that finally gives this old house the breathing room it deserved.

The walk-in closet alone has been a quiet obsession. We’re designing it with a center island, open shelving, and clothing racks: the kind of closet that makes getting dressed feel intentional rather than chaotic. It's organized without being sterile, and it tucks neatly into the Victorian's existing roofline in a way that feels like it's always been there.

Then there's the en-suite bathroom, which is where we got to have the most fun. We landed on a palette that feels both timeless and quietly bold: rich blue subway tile that shifts in the light, marble mosaic floors that add pattern and warmth underfoot, and classic nickel fixtures throughout. It's the kind of bathroom that feels like it belongs in this house.

The current phase and the vision:

What a Renovation Actually Teaches You

We're still in the thick of it; this is a whole-home project, and there are chapters left to write. But the upstairs has already shown us something important: the best renovations aren't the ones where every plan survives contact with the house. They're the ones where you stay curious about what the house is asking for, and flexible enough to answer.

Cedarburg has a way of holding onto its history, and we're trying to do the same.

Follow along as we continue the renovation. More to come.

Next
Next

If Your House Isn’t Getting Offers, Read This.